Opbrengsteigendom (A) te ANTWERPEN (2060)

€ 525.000

Opbrengsteigendom (ca. 250 m²) bestaande uit 3 appartementen en koer op een opkomende locatie in Antwerpen (2060).
.cs95E872D0{text-align:left;text-indent:0pt;margin:0pt 0pt 0pt 0pt}.cs9D249CCB{color:#000000;background-color:transparent;font-family:'Times New Roman';font-size:12pt;font-weight:normal;font-style:normal;}

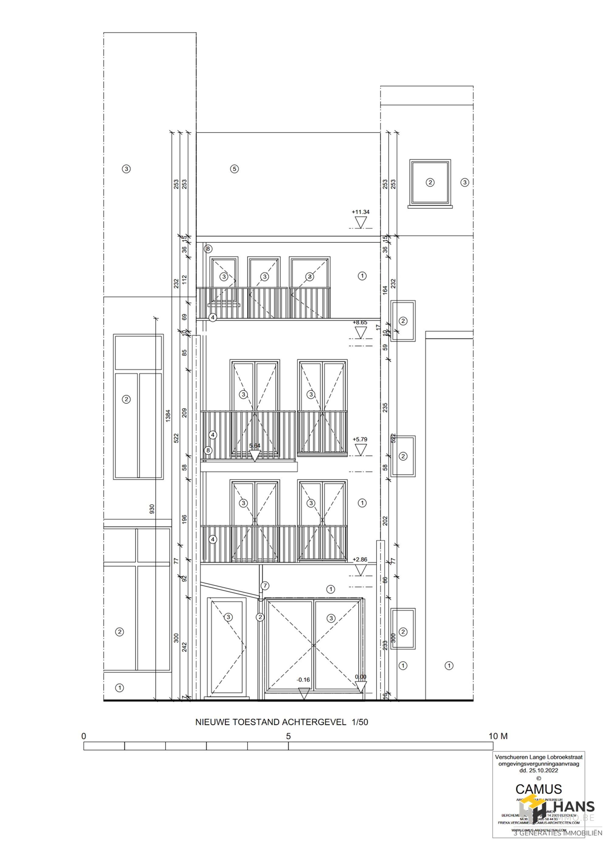
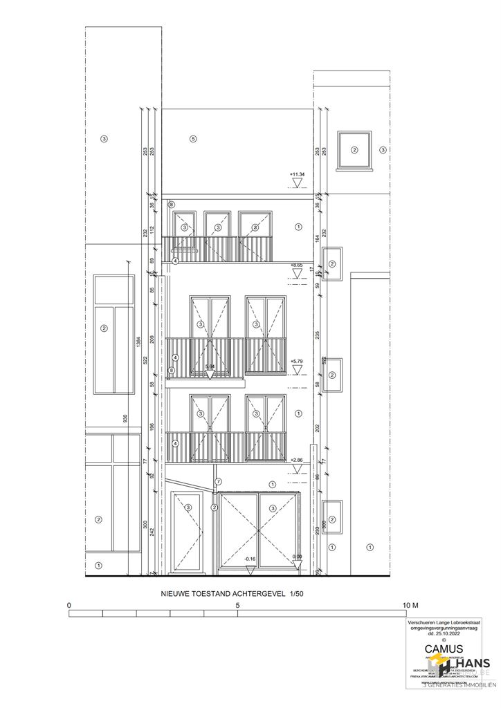
Het pand is gunstig gelegen in de wijk Antwerpen-Dam, een gezellige buurt die een sterke heropleving doormaakt en nog verder zal doormaken in de nabije toekomst dankzij de vernieuwing van de Slachthuissite en de nabijheid van Park Spoor Noord. Het openbaar vervoer en velo-stations zijn goed vertegenwoordigd op wandelafstand en met de wagen bereik je de stadsrand en de snelweg in een mum van tijd. Het pand wordt verkocht met een vergunning die verdere optimalisatie van de 3 appartementen mogelijk maakt (betere indeling, terrassen etc.).

 

Het gebouw, waarvan het skelet opgetrokken is van beton, dateert uit 2004 en verkeert in goede staat. Naast het dak dat conform de norm 2020 is, is de elektriciteit conform de AREI-vereisten. Verder hebben alle ramen dubbele beglazing. Er zijn aparte meters voor gas, water en elektriciteit aanwezig. De huuropbrengsten zijn stabiel en bedragen €1700/maand, wat een bruto-rendement van 4,5% oplevert.

 

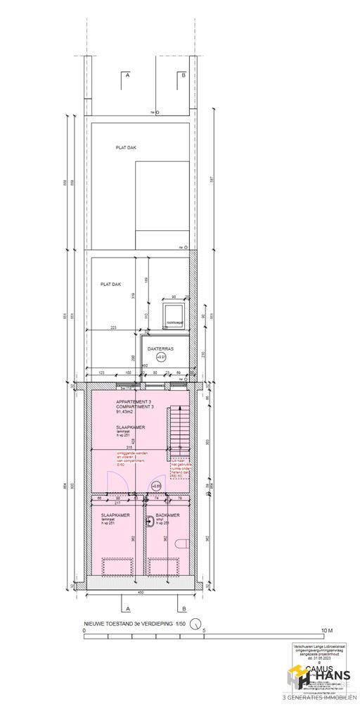
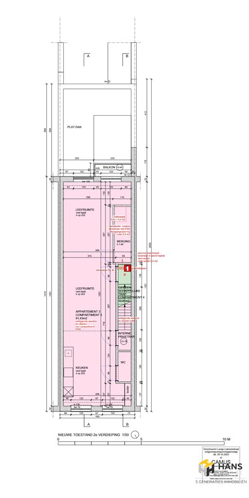
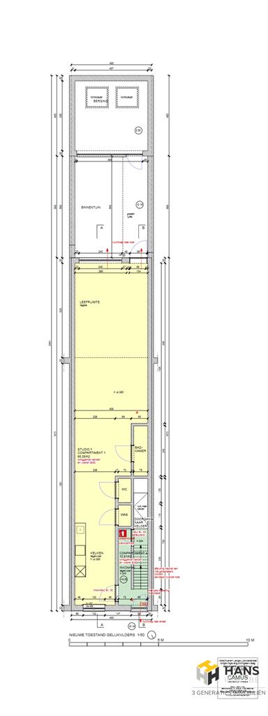
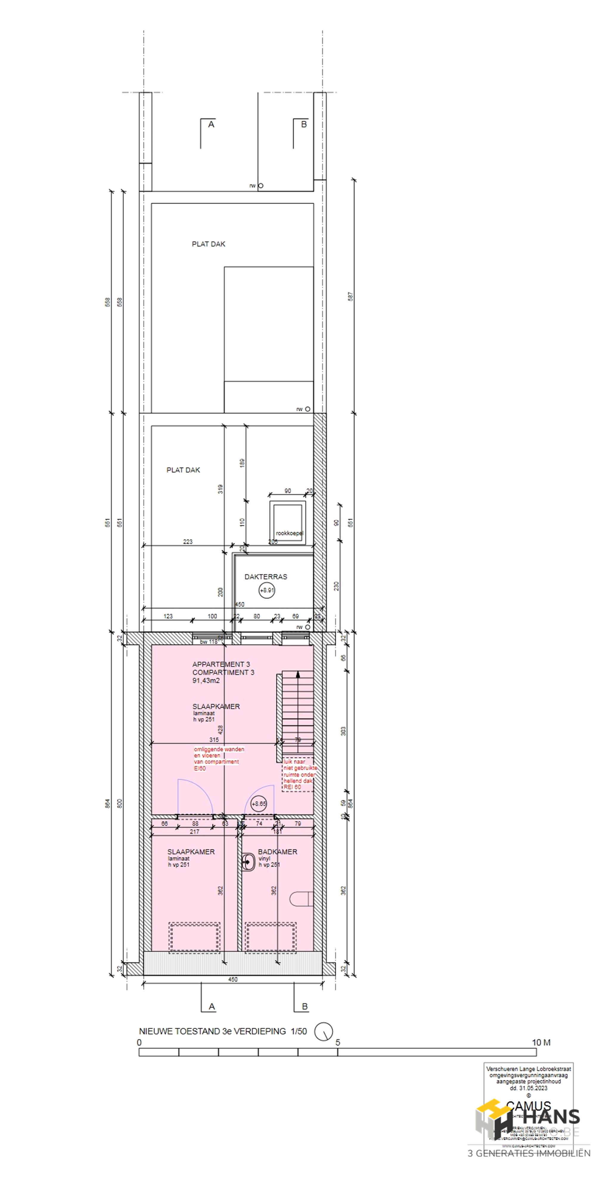
De opbrengsteigendom bestaat uit 3 appartementen: het gelijkvloers (ca. 85m²) en de eerste verdieping (ca. 60m²) beschikken over 1 slaapkamer, terwijl het triplex appartement (ca.105m²) op de bovenverdiepingen 4 slaapkamers heeft. De keukens zijn uitgerust met een basisinrichting en in de badkamers zijn er een douchecabine, wc en lavabo aanwezig. Het gelijkvloers heeft toegang tot een zuid-georiënteerde koer (16 m²) en bijgebouw/berging. Zoek je een interessante opbrengsteigendom in een opkomende buurt? Hans Immo leidt je graag rond in deze opportuniteit! Voor meer info of een gratis schatting surf naar www.hansimmo.be

 

Algemeen
Aantal slaapkamers
:
4
Aantal badkamers
:
3
Bewoonbare opp.
:
250 m²
Grondoppervlakte
:
144 m²
Bouwjaar
:
2004
Comfort
Verwarming
:
CV op gas
Type dak
:
Zadeldak
Dakbedekking
:
Pannen
Keuken
:
Kasten met toestellen
Beglazing
:
Dubbel
Raamkozijn
:
pvc
Comfort binnen
:
Aansluiting Internet, Parlofoon
Financiële Info
Stedenbouwkundige informatie
Voorkooprecht
:
Ja
Bouwvergunning verkregen
:
In aanvraag
Dagvaarding en herstelvordering
:
In aanvraag
Verkavelingsvergunning
:
In aanvraag
Bestemming
:
In aanvraag
Erfgoed
:
Nee
Energie certificaat
EPC No.0003030516-RES-2
E spec
:
113 kWh/m².jaar


Lasten
Google kaart
De kaart vergroten
Uitzicht op straat