Woning te DEURNE (2100)

€ 319.000

Instapklare, energiezuinige woning met loftgevoel, dakterras (73 m²) en uitbreidingspotentieel te Deurne.
.cs95E872D0{text-align:left;text-indent:0pt;margin:0pt 0pt 0pt 0pt}.cs9D249CCB{color:#000000;background-color:transparent;font-family:'Times New Roman';font-size:12pt;font-weight:normal;font-style:normal;}.csC583D0C8{text-align:left;text-indent:0pt;margin:12pt 0pt 12pt 0pt}.csBB6B59F5{color:#000000;background-color:transparent;font-family:'Times New Roman';font-size:11pt;font-weight:normal;font-style:normal;}.cs3A4479F6{text-align:left;text-indent:0pt;margin:0pt 0pt 12pt 0pt}.csF9555EFC{color:#000000;background-color:transparent;font-family:'Microsoft Sans Serif';font-size:11pt;font-weight:normal;font-style:normal;}.csDE8C0592{color:#0000FF;background-color:transparent;font-family:'Times New Roman';font-size:10pt;font-weight:normal;font-style:normal;text-decoration: underline;}

Instapklare, energiezuinige woning met loftgevoel, dakterras (73 m²) en uitbreidingspotentieel te Deurne.

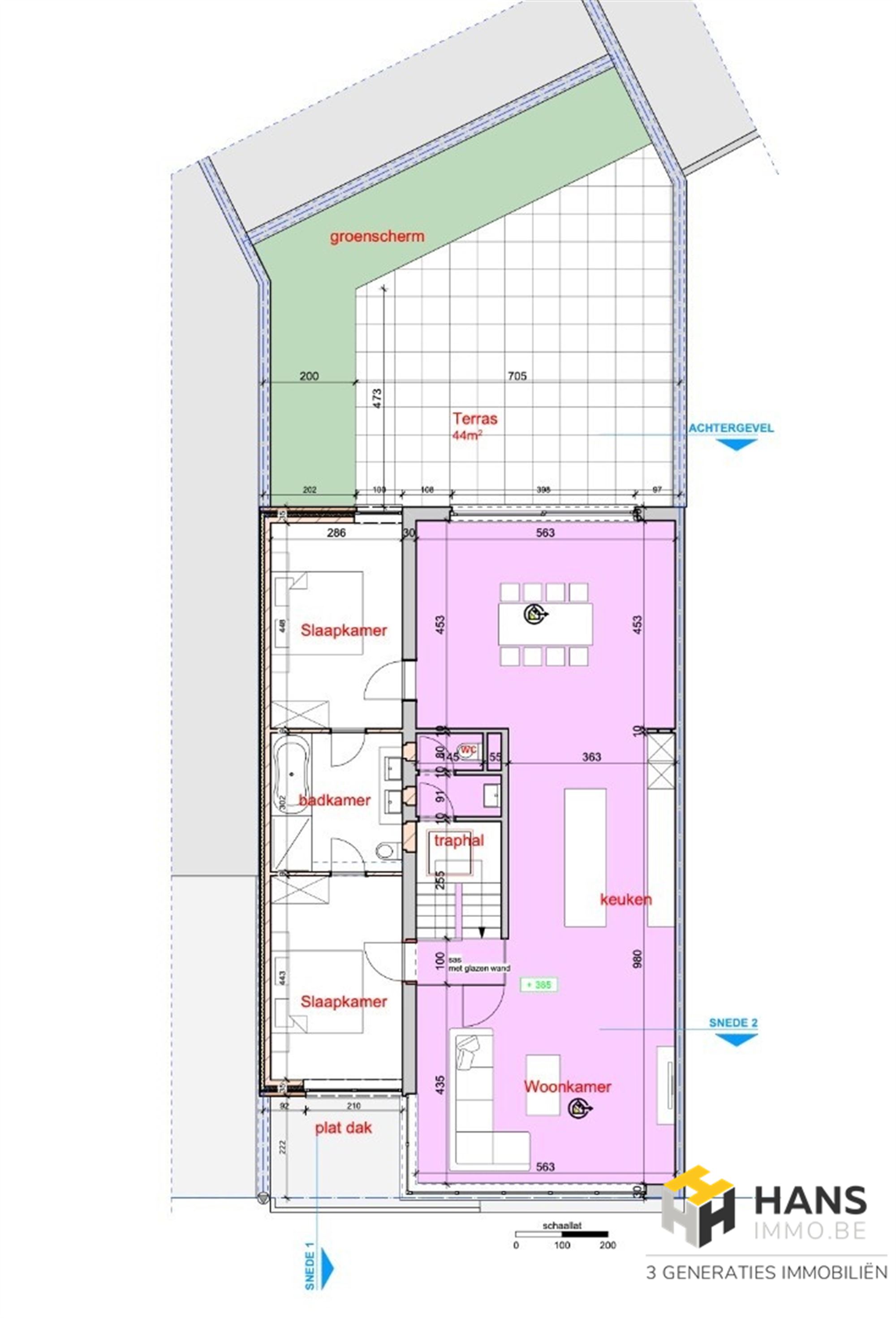
Gelegen op de grens Deurne/Schoten, vlakbij groene zones en met een vlotte verbinding naar de stad. Het zonovergoten terras sluit via grote schuiframen perfect aan op de lichtrijke leefruimte en vormt samen met deze verdieping het kloppende hart van de woning. Hier geniet u van vloerverwarming, airconditioning en elektrische jaloezieën voor optimaal comfort in elk seizoen.

De ruime leefruimte (15m lang) is afgewerkt met een stijlvolle wand in maatwerk kasten, inclusief barkast, ingebouwd bureau en geventileerde AV-ruimte. De open keuken is volledig uitgerust met moderne toestellen en beschikt over een grote ingebouwde wijnkoelkast voor 178 flessen.

De woning is energiezuinig en slim, met 15 zonnepanelen, een conforme elektrische installatie en een domoticasysteem voor bediening van verlichting en verwarming op afstand. Op het gelijkvloers bevindt zich de rustige masterbedroom (17 m²) met dressing en een recent vernieuwde badkamer met inloopdouche, regendouchekop, dubbele lavabo en aansluitingen voor was- en droogkast. Het tussenverdiep beschikt over een extra toilet en een technische ruimte.

Als extra troef zijn er reeds plannen aanwezig voor uitbreiding met drie bijkomende kamers. Een unieke combinatie van licht, comfort en toekomstpotentieel nabij park Bremweide en Ertbrugge.

 

Ben jij op zoek naar een instapklare woning met gigantisch dakterras? Mis deze kans niet! Bewoonbare opp. 114 m² ref.: bruto vloeropp. EPC-certificaat Voor meer info of een gratis schatting surf naar www.hansimmo.be

 

Algemeen
Aantal slaapkamers
:
1
Aantal badkamers
:
1
Bewoonbare opp.
:
114 m²
Grondoppervlakte
:
205 m²
Voorgevel
:
9 m
Perceel breedte
:
9 m
Bouwjaar
:
1979
Comfort
Verwarming
:
Vloerverwarming
Oriëntatie achtergevel
:
Zuid
Type dak
:
Plat dak
Dakbedekking
:
EPDM
Keuken
:
Volledig ingebouwd
Beglazing
:
Dubbel
Raamkozijn
:
alu
Comfort binnen
:
Airconditioning, Aansluiting Internet, Parlofoon, Dubbele beglazing
Financiële Info
Stedenbouwkundige informatie
Voorkooprecht
:
Nee
Bouwvergunning verkregen
:
Ja
Dagvaarding en herstelvordering
:
Geen rechterlijke herstelmaatregel of bestuurlijke maatregel opgelegd
Verkavelingsvergunning
:
Nee
Bestemming
:
Woongebied
Asbesttype
:
Asbestveilig
Datum asbestattest
:
2025-08-08 00:00:00
G-score
:
Klasse D
P-score
:
Klasse D
Erfgoed
:
Nee
Energie certificaat
EPC No.20250804-0003658328-RES-1
E spec
:
233 kWh/m².jaar


Lasten
Google kaart
De kaart vergroten
Uitzicht op straat